Foto levereras av Google Street View och kan vara oprecist:
Lager att hyra, Sigtuna, Bristagatan 16B
Bristagatan 16B, Sigtuna- Lager att hyra
- 421 m2

Bristagatan 16B, Sigtuna
- Lager att hyra
- 421 m2
FÅ MER INFO OM LOKALEN
Du länkas till en annan portal, som kan kan kräva betalning eller skapande av en använderprofil
Lager att hyra, Sigtuna, Bristagatan 16B
Fakta
- 537946
- Lager
- 421 m2
- Inte angivet
FÅ MER INFO OM LOKALEN
Du länkas till en annan portal, som kan kan kräva betalning eller skapande av en använderprofil
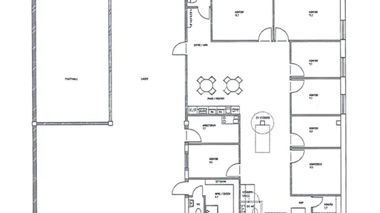
Flexibel lokal om 421 kvm – lager, kontor och personalytor på Bristagatan 16B
Välkommen till en mångsidig lokal om totalt 421 kvm på Bristagatan 16B i Arlandastad ett strategiskt läge med närhet till både E4:an, Märsta och Arlanda flygplats.Lokalen är fördelad på en lagerdel med god takhöjd, egen WC och lagerportar för smidig in- och utlastning, samt en kontorsdel med mötesrum, pentry och personalutrymmen.Kontorsdelen har dessutom en separat kundentré med jalusi, vilket gör lokalen särskilt lämplig även som servicelokal, exempelvis för hämtningsservice, kundmottagning eller annan serviceinriktad verksamhet.Tack vare den genomtänkta planlösningen passar lokalen för flera olika användningsområden från lagerhållning och lättare produktion till kombinerad kontors- och servicelokal.Välkommen att boka visning!Goda kommunikationer till Märsta Centrum och Pendeltåg (Märsta Station), E4 nås på 3 minuter med bil.Hitta hit med SLParkeringsplats. Går att hyra.Enligt överenskommelseFastPartner arbetar långsiktigt med att äga och förvalta fastigheter i Sveriges mest expansiva regioner. Vi är sedan 1994 noterade på Nasdaqs MidCap-lista och förvaltar idag mer än 1,2 miljoner kvadratmeter lokalyta. Vår ambition är att vara en smidig och effektiv partner för företag som vill utveckla sin verksamhet.På fastigheten finns byggnader för lager och industri samt kontor.Centralt belägen fastighet i arbetsområdet.
Information och data
Detta förråd ligger på Bristagatan i Sigtuna. Sigtuna ligger i kommunen Sigtuna, som ligger i Stockholms län. Lokalen är totalt 421 m2.