Foto levereras av Google Street View och kan vara oprecist:
    
Lager att hyra, Borås, Viskafors,
, Borås- Lager att hyra
- 610 m2
![Lager att hyra, Borås, Viskafors, <span class="blurred street" onclick="ProcessAdRequest(529422)"><span class="hint">Se gatunamn</span>[xxxxxxxxxx]</span>](/LPUploadImages/Cache/3d5870ee-6270-466b-8a0e-4d55005fd5c9_134.webp?t=638876395623058950) 
            
                , Borås
                
            - Lager att hyra
- 610 m2
            FÅ MER INFO OM LOKALEN
            Du länkas till en annan portal, som kan kan kräva betalning eller skapande av en använderprofil
Lager att hyra, Borås, Viskafors,
Fakta
- 529422
- Lager
- 610 m2
- Inte angivet
                    FÅ MER INFO OM LOKALEN
                    
            
        Du länkas till en annan portal, som kan kan kräva betalning eller skapande av en använderprofil
                Lagerlokal med kontor, stor port och uppställningsyta – 15 min från Borås!
            Lagerlokal med kontor och uppställningsyta – ca 990 kvm i Viskafors
 
Letar du efter en flexibel lokal för lager, logistik, lättare produktion eller distribution – med bra access och personalytor? Då kan denna lokal vara helt rätt för dig.
 
Fastigheten ligger i Viskafors, cirka 15 minuter från Borås centrum och 50 minuter från Göteborg. Här erbjuds en välplanerad lokal med goda ytor, funktionella kontor och smidiga logistiska förutsättningar.
 
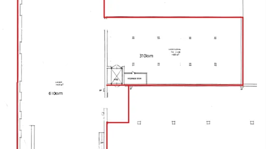
Ytor:
 
Lagerdel 1: ca 610 kvm med ca 5 meter takhöjd
 
Lagerdel 2: ca 320 kvm
 
Entresolplan: ca 70 kvm med kontor, konferensrum, pentry och lunchrum
 
Tillgänglighet & logistik:
 
Stor markport för smidig lossning och lastning
 
Truckkörning möjlig inne i lokalen
 
Vändyta för större fordon direkt utanför
 
Uppställningsytor utomhus
 
Gott om parkering på fastigheten
 
Teknisk standard:
 
Bergvärme – energieffektiv uppvärmning
 
Gott om el – kapacitet för verksamheter med högre effektbehov
 
Funktionellt pentry, WC och lunchrum
 
Nyligen omlagt tak
 
Lokalen har en rå men välskött karaktär som passar företag som söker praktiska, lättillgängliga ytor utan onödigt lull-lull. Det finns även möjlighet att anpassa lokalen efter verksamhetens behov i dialog med hyresvärden.
 
Fastigheten rymmer fler lokaler, vilket ger möjlighet till framtida expansion.
 
Tillträde:
Lokalen är ledig för omgående inflytt. Hyresvillkoren är förhandlingsbara och vi är öppna för både kort- och långsiktiga upplägg.
            
        
            Letar du efter en flexibel lokal för lager, logistik, lättare produktion eller distribution – med bra access och personalytor? Då kan denna lokal vara helt rätt för dig.
Fastigheten ligger i Viskafors, cirka 15 minuter från Borås centrum och 50 minuter från Göteborg. Här erbjuds en välplanerad lokal med goda ytor, funktionella kontor och smidiga logistiska förutsättningar.
Ytor:
Lagerdel 1: ca 610 kvm med ca 5 meter takhöjd
Lagerdel 2: ca 320 kvm
Entresolplan: ca 70 kvm med kontor, konferensrum, pentry och lunchrum
Tillgänglighet & logistik:
Stor markport för smidig lossning och lastning
Truckkörning möjlig inne i lokalen
Vändyta för större fordon direkt utanför
Uppställningsytor utomhus
Gott om parkering på fastigheten
Teknisk standard:
Bergvärme – energieffektiv uppvärmning
Gott om el – kapacitet för verksamheter med högre effektbehov
Funktionellt pentry, WC och lunchrum
Nyligen omlagt tak
Lokalen har en rå men välskött karaktär som passar företag som söker praktiska, lättillgängliga ytor utan onödigt lull-lull. Det finns även möjlighet att anpassa lokalen efter verksamhetens behov i dialog med hyresvärden.
Fastigheten rymmer fler lokaler, vilket ger möjlighet till framtida expansion.
Tillträde:
Lokalen är ledig för omgående inflytt. Hyresvillkoren är förhandlingsbara och vi är öppna för både kort- och långsiktiga upplägg.
Information och data
Detta förråd ligger på Kyrkvägen i Borås. Borås ligger i kommunen Borås, som ligger i Västra Götaland. Lokalen är totalt 610 m2.
                Detta är ett sökresultat. Klicka dig vidare till den externa webbplatsen för att få mer information om lokalen.
            
            
     
                    
                 
                    
                 
                    
                 
                    
                 
                    
                 
                    
                 
                    
                 
                    
                 
                    
                 
                    
                 
                    
                 
                    
                 
                    
                 
                    
                